Logements collectifs
Logements collectifs
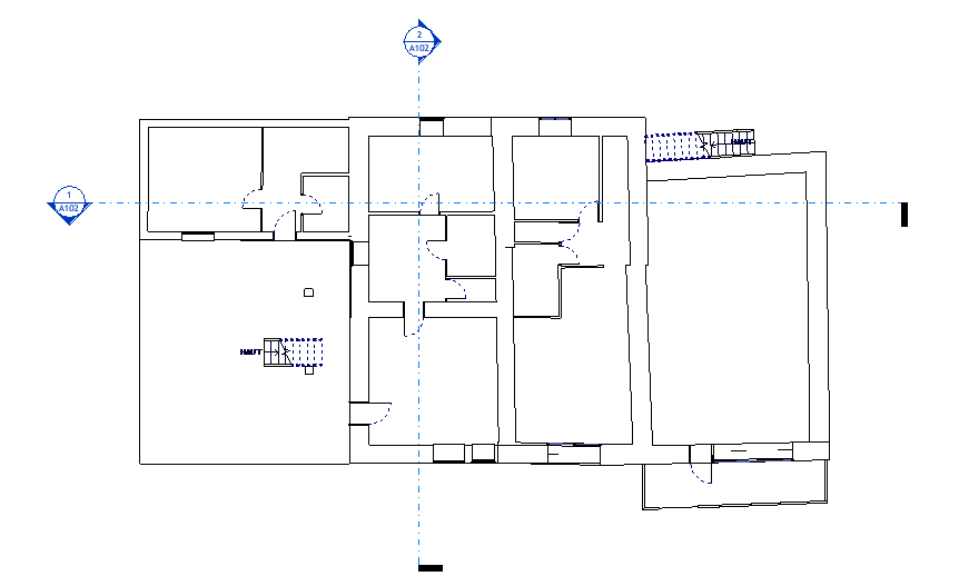
- Faire le relevé 3D du bâtiment, composé de 9 logements répartis sur 3 niveaux. Outils : scanner 3D Matterport
- Traitement du nuage de point sur ReCap pro
- Modélisation de la maquette numérique d’après le nuage de point sur le logiciel revit.
Rendu Réaliste via Twinmotion
Nuage de point Maquette :
PLANS DE NIVEAU
Coupes :
Coupe longitudinale transversale :









